CUBE
 

 
 

四角いから広くシンプルだから魅力的

 
 

 

シンプルが個性になる外観

余計な要素をそぎ落としたミニマルな外観デザイン。
プライバシー性が高く、自分たちの暮らしを大切に。
シンプルであることを個性にする、存在感あるすっきりとしたキューブ型の住まいです。

 
 


 
 

 
開放的な大空間

テクノストラクチャーだからできるワイドな吹抜けリビング。
外観の見た目からは想像できない、明るくて気持ちのよい空間です。
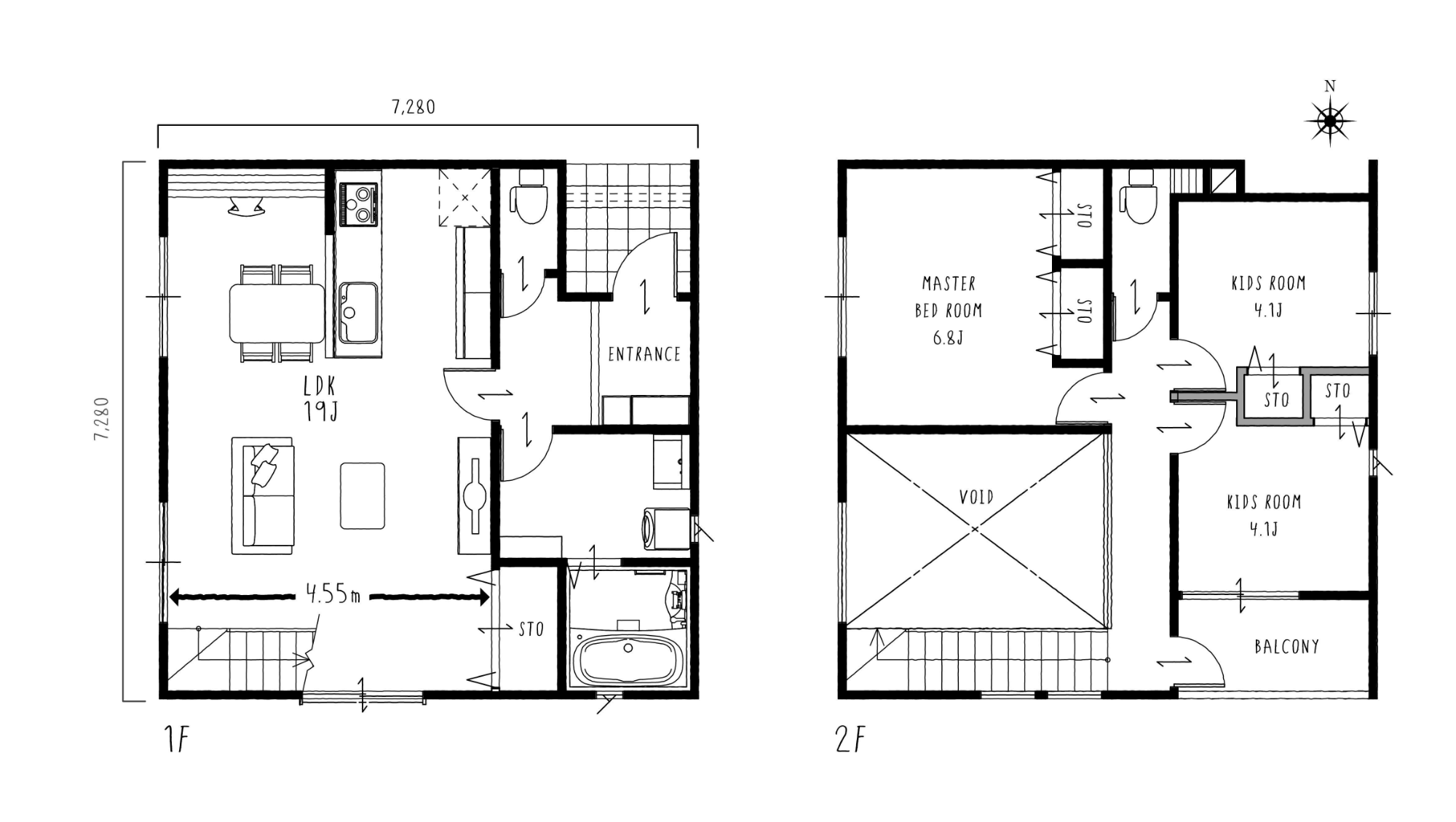
天井高さ 5.2m の吹抜けと、在来木造住宅では難しい柱のない奥行き 4.5m の空間は、タテにもヨコにも空間の広がりを感じさせます。
大空間を支えるのはテクノストラクチャーの強さ。この柱のない大きな空間を耐震等級 3 で実現します。

  

 

 
 
 

お気に入りのインテリア

自分の好きなデザインにこだわって、お気に入りの空間を。
建物がシンプルだから、家に自分で手を加えていく過程を楽しんだり、
カスタマイズして自分好みに仕立てていくなど、住まいや空間の変化を楽しめます。


 
 
延床面積 /88.18 ㎡ (26.71 坪 )
1F 床面積 /49.68 ㎡ (15.05 坪 )
2F 床面積 /38.50 ㎡ (11.66 坪 )
 

 
 
 

 プラン例

  
正面ファサードの窓をなくしたプラン。
2階の吹抜けから採光することで、プライバシーへの配慮と明るさを両立します。
  
 




 
新築・建替え・リフォーム
ご相談の方へ


お客様のニーズに合った
ご提案をさせていただいております。
 
 
 
気軽にお問合せください
 
 

 
 

白川建設株式会社
〒519-0213 三重県亀山市田村町1995-31
TEL:0595-85-0956㈹ / FAX:0595-85-1947
Copyright shirakawahome. All Rights Reserved.

TOP