住む人それぞれにある譲れない希望。
おしゃれさ、個性、ステキな暮らし。
それらをぜんぶ、叶えていきたい。
でも、私たちにはそれよりも優先して考える別のことがあります。
おしゃれさ、個性、ステキな暮らし。
それらをぜんぶ、叶えていきたい。
でも、私たちにはそれよりも優先して考える別のことがあります。


住む人が望むステキな暮らしは、大事なことをきちんと叶えられる性能の上に
あたりまえを、きちんと叶えた住まい。
あたりまえを、きちんと叶えた住まい。

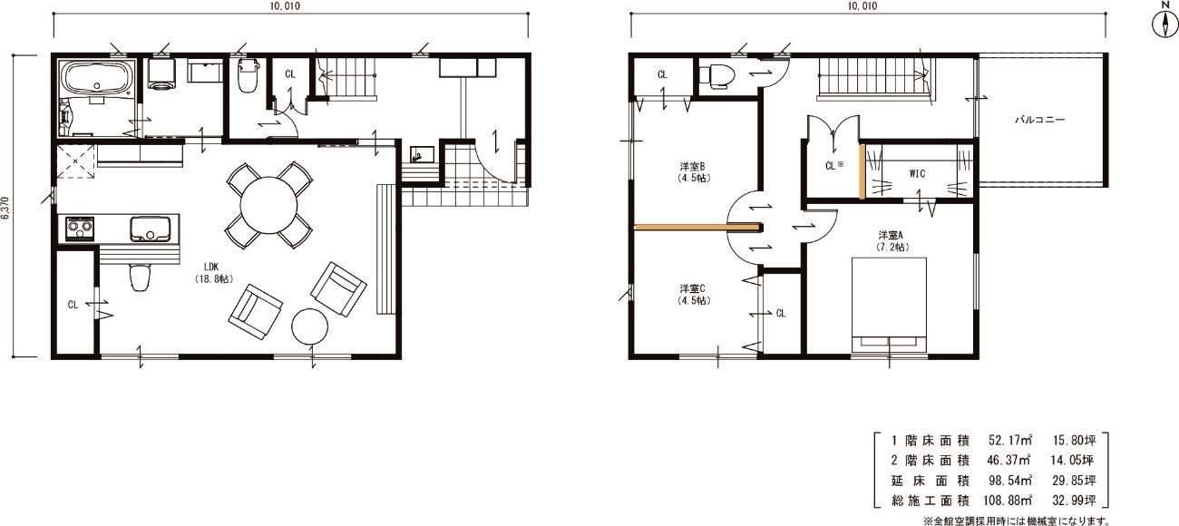
Plan.1
家はあえてコンパクトに
モノに縛られず自由に効率的に暮らす
キッチンを起点に洗面・バス・リビングをコンパクトかつ機能的に配置。
モノや家を維持することから解放された時間は
庭に出てゆったりしたり、家族それぞれが好きなことを楽しんだり。
家をコンパクトにまとめることで、シンプルで上質な暮らしを叶えるプランです。


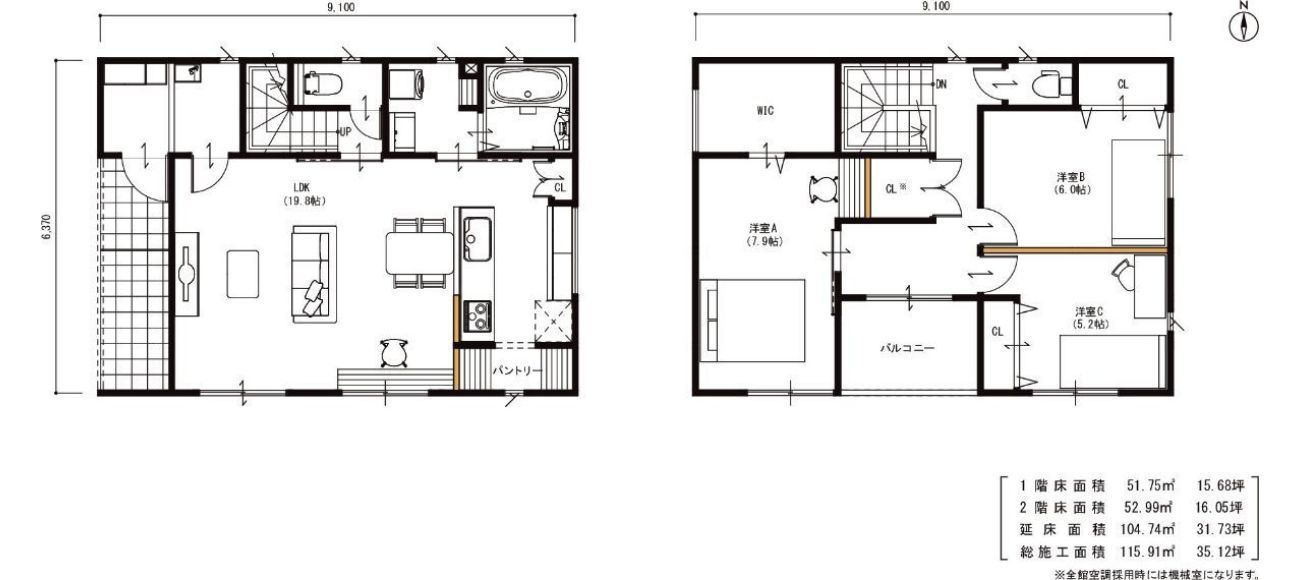
Plan.2
すっきりと暮らす仕組みをIN
家族のふれあいを大切に暮らす
玄関からリビングを通って階段そしてそれぞれの目的の場所へ。
家族のコミュニケーションが自然に生まれるLDKには、パントリーやリビング収納も配置。
知らないうちに増えるモノの指定席を用意することですっきりと暮らす仕組みを作りました。
毎日の生活をストレスなく、ごく普通に暮らす。この「なにげない幸せ」を大切に求めたプランです。


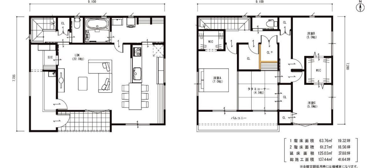
Plan.3
家族の成長にあわせた家の使い方
ゆとりを生かしていつも快適に暮らす
毎日の生活も友人のを招いた時も、ゆとりを感じる広々とした玄関ホールとLDK。
洗面室のスペースに余裕をもたせることで、毎日の身支度にもゆとりが生まれます。
タタミコーナーのある2階の間取りは家族の成長と暮らし方にあわせて使い方自在。
「建てた時」のベストから、「今」のベストへと暮らし方をアップデートしやすいプランです。


白川建設株式会社
〒519-0213 三重県亀山市田村町1995-31
TEL:0595-85-0956㈹ / FAX:0595-85-1947
Copyright shirakawahome. All Rights Reserved.